首页
首页
电气工程
电气图纸
电气图纸
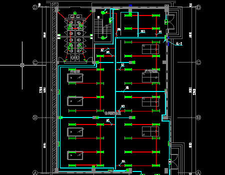
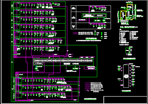
医院大楼强电施工图纸
医院大楼强电施工图纸包括变配电室平面布置图、变配电室平面布置图、1#变压器系统接线图、2#变压器系统接线图、干线系统图、低压配电柜系统图等
安置房强弱电施工图
图纸包括电气设计施工说明,图纸目录、配电系统图(一)、图例表,一层照明平面图,二层照明平面图,一层弱电平面图,二层弱电平面图,一层强电干线平面图,
露天屋顶体育馆强电施工图纸
图纸包括电气设计说明,配电系统图,负一层照明平面图,基础接地平面图(一),基础接地平面图(二),屋顶防雷平面图等供大家参考!
某国际物流中心弱电系统图
图纸包括办公楼公共网络综合布线系统图,内部网络综合布线系统图,门禁设备接线示意图,监控网络系统图,信息发布系统图,背景音乐系统图等供大家参考!
某小学教学楼电气图纸
图纸包括电气设计说明,图例表 应急照明接线示意图,配电系统图 弱电系统图,一层电气平面图,二三层电气平面图,一层弱电平面图,二三层弱电平面图,基础接地平面图,屋顶防雷平面图等供大家参考!
三层住宅楼强弱电施工图
图纸包括图纸目录,防雷设计,防雷设计说明,天面防雷平面图,桩基础接地平面图,防雷接地做法大样图,总等电位及局部等电位连接做法大样图,
二层机房专项电气施工图
图纸包括照明平面图,插座平面图,安全技术防范系统图, 二层机房区火灾自动报警平面图,二层IDC机房区安全技术防范平面图,二层IDC机房区布线平面图等供大家参考!
发电厂强电施工图纸
图纸包括图纸文件目录,材料表,3#综合楼±0.000m层照明平面布置图,3#综合楼10.000m层照明平面布置图,3#综合楼照明系统图,3#综合楼检修系统图3#综合楼±0.000m层动力平面布置图
太阳能路灯改造施工图纸
该工程包括村内贯穿东西主路一条,多条支路,主路全长1360米,支路合计长度8700米,累计全长10060米
三层别墅电气施工图纸
三层别墅电气施工图纸包括负一层电气平面图、首层电气平面图、二层电气平面图、三层电气平面图、屋面层电气平面图、总等电位及局部等电位作法大样图
火电厂烟囱防雷接地施工图
图纸包括烟囱防雷接地施工图,布置示意图等供大家参考!
某工业园箱站施工图纸
某工业园箱站施工图纸包括系统方案图、接地装置图、箱变低压系统图,供大家参考!
250kVA箱式变电站设计图纸
250kVA箱式变电站设计图纸包括箱站基础图、箱站平面布置图
10千伏配电网工程典型设计图纸
中10kV架空线路分册共列杆头模块15个、杆头型式31种;杆型模块36个,杆型72种;导线排列分为水平、垂直、三角共三种基本型式;杆塔回路数分为单回、双回、三回和四回。
卷烟厂成品库弱电设计图纸
图纸包括图纸目录,设计说明、主要设备材料表,智能与信息系统图、图例,一层智能与信息系统平面图,二层智能与信息系统平面图,三层智能与信息系统平面图等供大家参考!
度假区水泵房电气施工图
图纸包括一层电力平面图,一层照明平面图,接地平面图,防雷平面图等供大家参考!
库区污水提升泵站工程电气施工图
图纸包括屋顶防雷平面图,二层照明平面布置图,一层照明平面布置图,接地平面布置图等供大家参考!
公共卫生间电气全套图
图纸包括电气设计说明,主设备材料表,配电系统图,第一层配电平面图,屋面防雷平面图,基础接地平面图等供大家参考!
粮食储备库电气施工图
图纸包括层电气平面图,一层接地平面图,屋顶防雷平面图等供大家参考!
学校电气系统设计图纸
本工程位于XX。地下一层,主要为停车库、厨房及设备用房等,分为三个防火分区;地上六层,主要为宴会厅、客房等,共113间客房。
首页
上一页
下一页
尾页