首页
首页
工程造价
造价培训
造价培训
混凝土及钢筋混凝土工程工程量计算实例培训课件
现浇混凝土及钢筋混凝土模板工程量的计算,除另有规定者外,均应区别模板的不同材质,按混凝土与模板接触面的面积,以平方米计算。
混凝土工程及钢筋混凝土工程工程量计算实例
现浇砼的种类:搅拌机、搅拌站、商品砼
混凝土及钢筋混凝土工程量计算规则及实例解析
一、混凝土工程按施工工种分:模板、钢筋、混凝土(现浇、预制)三部分。其中,模板列入措施项目计价。
混凝土与钢筋混凝土工程工程量计算
异形柱是指柱面有凹凸或竖向线脚的柱、截面为工、十、T形或正五边至正七边形的柱。
混凝土柱梁板工程量计算课件
在现浇混凝土柱综合单价中,柱划分为矩形柱、异形柱、圆形柱和构造柱四大类。其中,矩形柱综合基价根据柱断面周长不同,划分为1.2m以内、1.8m以内、1.8m以外三个综合单价子目
剪力墙工程工程量计算实例
工程量计算规则:现浇混凝土的模板工程量,除另有规定外,均应按混凝土与模板的接触面积,以平方米计算,不扣除柱与梁、梁与梁连接重叠部分的面积。
建设工程计价的基本内容
固定资产是指在社会再生产过程中,可供生产或生活较长时间使用,在使用过程中基本保持原有实物形态的劳动资料或其他物质资料,比如建筑物、构筑物、电气设备等。
建筑电气施工图工程量计算
照明控制设备:主要指照明配电箱、板以及箱内组装的各种控制开关、熔断器、计量仪表、盘柜配线等。照明工程控制设备安装,分成套型控制设备和单体控制设备安装。
建筑电气识图与工程实例培训讲义
一、图纸的格式与幅面大小:一个完整的图面由边框线、图框线、标题栏、会签栏等组成。 2019-04-12
建筑工程工程量计算例题课件
计算下图砖基础工程量及该分项工程定额直接费及其人工费、材料费、施工机械使用费。(外墙基础折加高度0.345M,内墙基础折加高度0.525M)。
建筑工程工程量计算实例解析
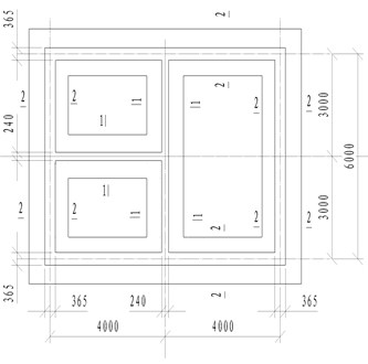
[例1]某商店平面如图9-3所示,地面做法:C20细石混凝土找平层60厚,1:2.5白水泥色石子水磨石面层20mm厚计算地面工程量,确定定额项目。
建筑工程工程量清单计价办法的应用实例讲解
石方开挖”项目(项目编码为010102002-000):适用于人工凿石、人工打眼爆破、机械打眼爆破等。
砌筑计量与计价及实例
地基的概念:是指基础底面以下,受到荷载影响范围内的部分岩、土体。地基不是建筑物的组成部分。
建筑面积工程量计算图解讲义(含实例解析)
建筑面积是表示建筑物平面特征的重要几何参数,它是指建筑物各层水平平面面积之和,包括使用面积、交通面积和结构面积 。
建筑脚手架工程量计算规则图文详解
本节包括外脚手架、里脚手架、满堂脚手架、悬空及挑脚手架、安全网等内容 。
建筑识图及工程量计算课件
建筑平面图的基本内容:1.图名、比例2.定位轴线及编号3.各房间的名称和平面位置,墙柱的断面形状和尺寸4.门窗布置及编号
建筑工程量计算案例
某建筑物如下图所示。内、外墙与基础均为MU7.5灰砂标砖砖砌,均用M7.5水泥石灰砂浆砌筑。土壤为三类土,不考虑弃土运距5km。
建筑工程量计算方法
挖沟槽:V=(垫层边长+工作面)×挖土深度×沟槽长度+放坡增量 2019-04-12
建筑工程量计算公式及计算方法
开挖土方计算公式: (1)、清单计算挖土方的体积:土方体积=挖土方的底面积×挖土深度。 2019-04-12
建筑各分项工程工程量计算实例
1、平整场地计算规则:(1)清单规则:按设计图示尺寸以建筑物首层面积计算。 2019-04-12
首页
上一页
下一页
尾页