楼地面工程计算案例
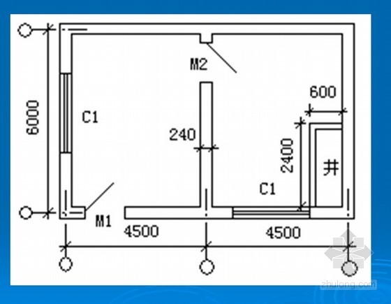
某工程楼面建筑平面如图8-2,设计楼面做法为30厚细石砼找平,1:3水泥砂浆铺贴300×300地砖面层,踢脚为150高地砖。求楼面装饰的费用。(M1:900×2400,M2:900×2400,C1:1800×1800)

解:1、30厚细石砼找平:查定额10-12#,
基价为8.83元/ m2
工程量:S=(4.5×2-0.24×2)×(6-0.24)-0.6×2.4
=47.64m2
找平层费用为:47.64×8.83=420.66元。
2、300×300地砖面层:查定额10-39#,基价为35.1元/ m2
工程量:S=(4.5×2-0.24×2)×(6-0.24)-0.6×2.4+0.9×0.24×2
=48.07 m2
地砖费用为:48.07×35.1=1687.26元
3、地砖踢脚:查定额10-90#,基价为37.76元/ m2
工程量:
S=[(4.5-0.24+6-0.24)×2×2-0.9×3+0.24×4] ×0.15
=38.34×0.15=5.75 m2
地砖踢脚费用为:5.75×37.76=217.12元
楼地面装饰费用合计为:420.66+1687.26+217.12=2325.04元