首页
首页
结构图纸
厂房结构
厂房结构
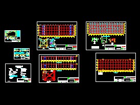
某厂房工程结构施工图
1.按重要性分类,本工程安全等级为二级。2.本工程主体结构设计使用年限为50年.3.本工程建筑抗震设防类别为丙类,抗震设防烈度为7度,设计基本地震加速度为0.15g,供各位参考
某厂房工程结构施工图
1.按重要性分类,本工程安全等级为二级。2.本工程主体结构设计使用年限为50年.3.本工程建筑抗震设防类别为丙类,抗震设防烈度为7度,设计基本地震加速度为0.15g,供各位参考
某厂房工程结构施工图
1.按重要性分类,本工程安全等级为二级。2.本工程主体结构设计使用年限为50年.3.本工程建筑抗震设防类别为丙类,抗震设防烈度为7度,设计基本地震加速度为0.15g,供各位参考
某厂房工程结构施工图
1.按重要性分类,本工程安全等级为二级。2.本工程主体结构设计使用年限为50年.3.本工程建筑抗震设防类别为丙类,抗震设防烈度为7度,设计基本地震加速度为0.15g,供各位参考
某厂房工程结构施工图
1.按重要性分类,本工程安全等级为二级。2.本工程主体结构设计使用年限为50年.3.本工程建筑抗震设防类别为丙类,抗震设防烈度为7度,设计基本地震加速度为0.15g,供各位参考
某厂房工程结构施工图
1.按重要性分类,本工程安全等级为二级。2.本工程主体结构设计使用年限为50年.3.本工程建筑抗震设防类别为丙类,抗震设防烈度为7度,设计基本地震加速度为0.15g,供各位参考
某厂房工程结构施工图
1.按重要性分类,本工程安全等级为二级。2.本工程主体结构设计使用年限为50年.3.本工程建筑抗震设防类别为丙类,抗震设防烈度为7度,设计基本地震加速度为0.15g,供各位参考
某厂房工程结构施工图
1.按重要性分类,本工程安全等级为二级。2.本工程主体结构设计使用年限为50年.3.本工程建筑抗震设防类别为丙类,抗震设防烈度为7度,设计基本地震加速度为0.15g,供各位参考
某厂房工程结构施工图
1.按重要性分类,本工程安全等级为二级。2.本工程主体结构设计使用年限为50年.3.本工程建筑抗震设防类别为丙类,抗震设防烈度为7度,设计基本地震加速度为0.15g,供各位参考
某厂房工程结构施工图
1.按重要性分类,本工程安全等级为二级。2.本工程主体结构设计使用年限为50年.3.本工程建筑抗震设防类别为丙类,抗震设防烈度为7度,设计基本地震加速度为0.15g,供各位参考
某厂房工程结构施工图
1.按重要性分类,本工程安全等级为二级。2.本工程主体结构设计使用年限为50年.3.本工程建筑抗震设防类别为丙类,抗震设防烈度为7度,设计基本地震加速度为0.15g,供各位参考
某厂房工程结构施工图
1.按重要性分类,本工程安全等级为二级。2.本工程主体结构设计使用年限为50年.3.本工程建筑抗震设防类别为丙类,抗震设防烈度为7度,设计基本地震加速度为0.15g,供各位参考
某厂房工程结构施工图
1.按重要性分类,本工程安全等级为二级。2.本工程主体结构设计使用年限为50年.3.本工程建筑抗震设防类别为丙类,抗震设防烈度为7度,设计基本地震加速度为0.15g,供各位参考
某厂房工程结构施工图
1.按重要性分类,本工程安全等级为二级。2.本工程主体结构设计使用年限为50年.3.本工程建筑抗震设防类别为丙类,抗震设防烈度为7度,设计基本地震加速度为0.15g,供各位参考
某厂房工程结构施工图
1.按重要性分类,本工程安全等级为二级。2.本工程主体结构设计使用年限为50年.3.本工程建筑抗震设防类别为丙类,抗震设防烈度为7度,设计基本地震加速度为0.15g,供各位参考
某厂房工程结构施工图
1.按重要性分类,本工程安全等级为二级。2.本工程主体结构设计使用年限为50年.3.本工程建筑抗震设防类别为丙类,抗震设防烈度为7度,设计基本地震加速度为0.15g,供各位参考
某厂房工程结构施工图
1.按重要性分类,本工程安全等级为二级。2.本工程主体结构设计使用年限为50年.3.本工程建筑抗震设防类别为丙类,抗震设防烈度为7度,设计基本地震加速度为0.15g,供各位参考
某综合楼结构施工图
某综合楼结构施工图,本工程的设计基准期为50年,结构的使用年限为50年。本工程(项目)为框架结构。供各位参考
某综合楼结构施工图
某综合楼结构施工图,包括平面图等,供各位参考
某仿古建筑结构施工图
仿古建筑结构施工图,包括平面图,立面图等,供各位参考
首页
上一页
下一页
尾页