首页
首页
结构图纸
厂房结构
厂房结构
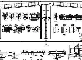
某门刚结构厂房施工图
2.本工程主体结构设计使用年限为50年.3.本工程建筑抗震设防类别为丙类,抗震设防烈度为7度,设计基本地震加速度为0.15g,所在场地设计地震分组为第一组,场地土类别为II类.
某钢结构厂房工程设计图
2.本工程主体结构设计使用年限为50年.3.本工程建筑抗震设防类别为丙类,抗震设防烈度为7度,设计基本地震加速度为0.15g,所在场地设计地震分组为第一组,场地土类别为II类.
某钢结构厂房工程施工图
2.本工程主体结构设计使用年限为50年.3.本工程建筑抗震设防类别为丙类,抗震设防烈度为7度,设计基本地震加速度为0.15g,所在场地设计地震分组为第一组,场地土类别为II类.
某钢结构厂房施工图
2.本工程主体结构设计使用年限为50年.3.本工程建筑抗震设防类别为丙类,抗震设防烈度为7度,设计基本地震加速度为0.15g,所在场地设计地震分组为第一组,场地土类别为II类.
某厂房工程结构施工图
2.本工程主体结构设计使用年限为50年.3.本工程建筑抗震设防类别为丙类,抗震设防烈度为7度,设计基本地震加速度为0.15g,所在场地设计地震分组为第一组,场地土类别为II类.
某医院综合楼结构施工图
本住院大楼是一个集多项功能为一体的高层公共民用建筑,不同的使用功能要求应设计不同的构造形式与之相适应,从而方便使用,
某厂房工程结构施工图
2.本工程主体结构设计使用年限为50年.3.本工程建筑抗震设防类别为丙类,抗震设防烈度为7度,设计基本地震加速度为0.15g,所在场地设计地震分组为第一组,场地土类别为II类.
某钢结构厂房工程施工图
2.本工程主体结构设计使用年限为50年.3.本工程建筑抗震设防类别为丙类,抗震设防烈度为7度,设计基本地震加速度为0.15g,所在场地设计地震分组为第一组,场地土类别为II类.
某厂房工程结构施工图
2.本工程主体结构设计使用年限为50年.3.本工程建筑抗震设防类别为丙类,抗震设防烈度为7度,设计基本地震加速度为0.15g,所在场地设计地震分组为第一组,场地土类别为II类.
某钢结构厂房工程施工图
2.本工程主体结构设计使用年限为50年.3.本工程建筑抗震设防类别为丙类,抗震设防烈度为7度,设计基本地震加速度为0.15g,所在场地设计地震分组为第一组,场地土类别为II类.
某厂房工程结构施工图
2.本工程主体结构设计使用年限为50年.3.本工程建筑抗震设防类别为丙类,抗震设防烈度为7度,设计基本地震加速度为0.15g,所在场地设计地震分组为第一组,场地土类别为II类.
某厂房工程结构施工图
2.本工程主体结构设计使用年限为50年.3.本工程建筑抗震设防类别为丙类,抗震设防烈度为7度,设计基本地震加速度为0.15g,所在场地设计地震分组为第一组,场地土类别为II类.
某厂房工程结构施工图
2.本工程主体结构设计使用年限为50年.3.本工程建筑抗震设防类别为丙类,抗震设防烈度为7度,设计基本地震加速度为0.15g,所在场地设计地震分组为第一组,场地土类别为II类.
某厂房工程结构施工图
2.本工程主体结构设计使用年限为50年.3.本工程建筑抗震设防类别为丙类,抗震设防烈度为7度,设计基本地震加速度为0.15g,所在场地设计地震分组为第一组,场地土类别为II类.
某钢结构厂房工程施工图(pdf格式)
2.本工程主体结构设计使用年限为50年.3.本工程建筑抗震设防类别为丙类,抗震设防烈度为7度,设计基本地震加速度为0.15g,所在场地设计地震分组为第一组,场地土类别为II类.
某厂房工程结构施工图
2.本工程主体结构设计使用年限为50年.3.本工程建筑抗震设防类别为丙类,抗震设防烈度为7度,设计基本地震加速度为0.15g,所在场地设计地震分组为第一组,场地土类别为II类.
某厂房工程结构施工图
2.本工程主体结构设计使用年限为50年.3.本工程建筑抗震设防类别为丙类,抗震设防烈度为7度,设计基本地震加速度为0.15g,所在场地设计地震分组为第一组,场地土类别为II类.
某厂房工程结构施工图
2.本工程主体结构设计使用年限为50年.3.本工程建筑抗震设防类别为丙类,抗震设防烈度为7度,设计基本地震加速度为0.15g,所在场地设计地震分组为第一组,场地土类别为II类.
某钢结构厂房工程施工图
2.本工程主体结构设计使用年限为50年.3.本工程建筑抗震设防类别为丙类,抗震设防烈度为7度,设计基本地震加速度为0.15g,所在场地设计地震分组为第一组,场地土类别为II类.
某钢结构厂房工程施工图
2.本工程主体结构设计使用年限为50年.3.本工程建筑抗震设防类别为丙类,抗震设防烈度为7度,设计基本地震加速度为0.15g,所在场地设计地震分组为第一组,场地土类别为II类.
首页
上一页
下一页
尾页