首页

  1. 首页
  2. 结构论文
  3. 内容

托梁截柱钢结构制安工程的施工方法

托梁截柱(也常叫托梁拔柱)属于建筑结构加固、改造施工专业术语:原本建筑内部有承重柱子受力,施工时先新增一道承重大梁,把上方楼层、屋面的全部荷载托住、承接传递,把上部荷载全部转移到新加的梁上之后,再把原本的承重柱子截断、拆除。

简单理解:先搭梁承重 → 再拆掉原有柱子多用于厂房内部改造、空间拓宽、设备移位、室内大开间改造、拆除原有承重柱扩大使用空间。

本文为厂房托梁截柱改造工程,主要目的是利用大跨度吊车梁与托梁组成新的支撑系统代替原有柱,从而加宽了柱距加大了使用空间。为此我们在对整个施工现场进行实地考察后,得出托梁截柱钢结构制安工程的施工方法。

关键词 :托梁截柱、荷载转换、结构拆除

编制依据:

钢结构工程施工质量验收标准-GB 50205−2020

 

钢结构焊接规范-GB 50661−2011 

 

目 录

1、工程概况

1.1 工程简介

1.2 工程内容

1.3 施工过程分步

1.4 施工难度

2、施工准备

2.1 施工安排

2.2 施工准备

3、新制钢柱、吊车梁、托梁制作工艺及技术要求

3.1 工艺流程

3.2 材料

3.3 下料

3.4 加工

3.5 装配

3.6 焊接

3.7 检验与矫正

3.8 涂装

4、安装、拆除施工工艺

4.1 构件进场、验收

4.2 安装前准备工作

4.3 改造安装施工工艺

1、工程概况

1.1 、工程简介:

某XXX为厂房托梁截柱改造工程,即某旧厂房改造项目 H、U 列 137 线和 142 线下柱拆除改造工程, 主要目的是利用大跨度吊车梁与托梁组成新的支撑系统代替 H、U 列 137 线和 142 线 4 根下柱,从而加宽了柱距加大了使用空间。

1.2 、工程内容:

新制作构件:钢柱 8 根、吊车梁 4 根、托梁 4 根、吊车梁制动系统、柱间支撑、托梁与吊车梁上柱连接次梁及柱肩梁加固构件、屋面下弦支撑加固等。
旧厂房改造:原有钢柱肩梁加固;吊车梁及制动系统拆除;牛腿拆除;柱间支撑拆除;  H、U列 137 线和 142 线 4 根下柱截除。

1.3 、施工过程分步:

加固拟截柱肩梁,按图纸截去与新制作吊车梁、托梁相碰部分;
安装新制作支托下柱,新做吊车梁、托梁、内次梁及牛腿就位;
拟抽柱牛腿(利用 100T 千斤顶)转移屋面恒荷载,控制吊车梁及托梁挠度达到 10mm时,即可认为屋面荷载已转移至托梁系统上;
焊接支承(次梁上)牛腿,紧固牛腿下次梁螺栓,安装完毕并检验合格后,卸载千斤顶,截去下柱。

1.4 、施工难度:

本工程为高难度的改建项目
施工前应对原钢柱进行加固并设置必要的临时支撑系统;施工中不确定因素较多,加大了安全风险性。
构件截面和单重较大:吊车梁高 4200mm、长 36000mm、重量 45.4t,共计4 根;托梁高  4200mm、长 36000mm、重量 30.74t  根、共计 4 根;钢柱最大重量 10.51t  根、共计 8 根,加大了制作、运输、吊装难度。
工序复杂:原有吊车梁系统拆除、柱肩梁加固、牛腿拆除、新制构件安装、顶升、沉降观测、加固焊接、截柱等多工序顺序或多次反复进行施工。
1.4.4 、安装现场条件复杂,需在原厂房内进行,原有设备很多不能拆除,导致现场拼装、吊装场地狭窄,无法全面展开施工,构件截面和单重较大,需用大型吊装设备,吊装设备受限。

2、施工准备

2.1 、施工安排

项目部全力组织好各项施工准备工作,合理安排机械、材料进场,做好安全防护措施。根据工程施工周期长,每道工序安装时间短,间歇时间长,质量要求高的特点,做好施工人员储备,合理安排施工作业,保证工程质量和施工进度。

2.2 、施工准备

根据总平面布置图,做好“四通一平”,搭设临时设施,消防设施,通讯设施,安全警示等,按指定地点堆放材料及周转工具。施工现场的道路应保证通畅。
由于拆除工作是在旧建厂房内进行,厂房内施工区域必须停止生产,平整施工场地和构件运输通道。
外围管道和线路切断工作,必需提前准备完毕。
拆除时,下部区域应设隔离带,并停止其它施工项目。应提前准备好拆除和安装所需各种机具。
由于拆除面积大,应搭设脚手架,平台应分层并提前搭设完毕。

3、新制钢柱、吊车梁、托梁制作工艺及技术要求

3.1 、工艺流程

图纸审核——编制工艺——备料及材料——放样下料——零部件加工——
装配——质量检验——焊接——质量检验(超声波)——喷砂除锈——涂装——编号——成品保护及出厂

3.2 、材料

钢柱材料材质 Q345B、缀条材质  Q235B,吊车梁材料的材质 Q345C,托梁材料材质为 Q235B,其余材料材质为 Q235B,以上材料需有质保证书。
高强螺栓:吊车梁制动系统连接采用 M24,10.9 级摩擦型高强螺栓,所有高强螺栓连接副必须有质保书, 高强度连接螺栓进场后要对不同批号的连接副实物进行检验和复验 , 对复检不合格的一律不得使用。
对连接件的摩擦面应进行摩擦面抗滑移系数的检测,达到设计所要求的数值后方可投入使用。进行摩擦面抗滑移系数检验,选用 3 组试件进行试验,抗滑移系数检验的最小值必须大于或等于设计规定值。试件与所代表的构件应为同一材质, 同一摩擦面处理工艺, 同批制作,使用同一性能等级、
同一直径的高强螺栓连接副,并在相同条件下发运。
所有焊材均需有质保书。
A. 手工焊焊材选择: Q345,选用 E5015 或 E5016;Q235B,选用 E4303—E4313。
B. 二氧化碳气体保护焊焊丝选择:  ER50-6(吊车梁为 Q345C)。
C. 埋弧自动焊:埋弧焊丝吊车梁   H08MnA、托梁 H08A,焊剂: SJ101。
D. 针对重级大跨度建筑结构中的一级焊缝,应进行焊接材料的复验。
严禁使用锈蚀严重或有缺陷的材料。
焊工必须经考试合格,并取得相应施焊条件的合格证书,方可施焊。
油漆应具有合格证,在使用有效期内,型号应符合设计要求。

3.3 、下料

在号料、下料前应核对钢材的规格、材质、批号并清除钢材表面的油污、泥土等脏物。在材料上画出切割、钻孔等加工位置;打冲孔;标注出零件的编号。(标注方法按照图纸构件名称进行标注)。
所有钢材均采用全自动数控切割和剪切的方式下料。
型钢的接料采用的标准接头,接口要避开螺栓孔及其它零部件焊缝位置。
钢板下料时, 焊缝纵向按  0.71000 ,焊缝横向按  11000 放焊接收缩余量,吊车梁及托梁腹板下料时考虑预留 1900 起拱留量,符合规范、对
下料的质量要求:
A. 手工下料允许偏差△±  3.0 mm
B. 自动、半自动切割机下料允许偏差△±   3.0 mm
C. 切割后的材料断面上不得有裂纹,分层等缺陷。并清除边缘上熔瘤和飞溅物,下料周边 50mm。
D.钢板或型钢采用气割切割时,要放出气割的割缝宽度,其宽度下表给出的数值考虑:
1 - 副本(1).png
对已下完的零件,要及时校核尺寸和进行标注。

3.4 、加工

所有高强螺栓连接螺栓孔尽量采用数控钻床进行筋板配套钻孔,严禁气割成孔。
吊车梁系统中,制动板与吊车梁之间为高强螺栓连接,为保证安装精度,加工制作时只在制动板号料钻孔,吊车梁与之配合的孔先不钻,安装时使用磁力钻机与制动板配钻。

3.5 、装配

装配应在材料(零件)的拼接、焊接完并矫正后进行。
装配的零部件应经检查合格,连接面和沿焊缝边缘约 50 ㎜范围内的
铁锈 . 毛刺 . 污垢和杂物等应清理干净。
立柱装配(包括支座等装配),应先装配肩梁,并以牛腿标高为尺寸控制基准点,分别返出各横梁等连接部位的螺栓孔 . 筋板的定位尺寸,然后进行整体装配。
1 - 副本.png
吊车梁、托梁装配:吊车梁、托梁制作时焊接 H型钢完成后,按图纸尺寸将余量切除,然后按图纸放大样进行组装焊接, 吊车梁、托梁跨度 36m需分段出厂,焊接完毕后应进行预拼装。
吊车梁:
梁 - 梁连接焊接顺序:由于梁的翼缘板比腹板厚,焊接收缩变形量较大,先焊翼缘板时,收缩的自由变形较大,不易产生裂纹,由两名焊工同时进行上下翼缘板焊接,应分层填充焊接至填满坡口,随后进行腹板焊接。
吊车梁上下翼缘和腹板在跨中 13 的跨长范围内应尽量避免拼接,翼缘板及腹板拼接时,两个端头加引弧、熄弧板,长度为 100~150mm,保证焊透。焊接完成后,引弧板需要趁热切割掉,不得锤击。对接焊缝反面采用碳弧气刨清根。翼缘板拼接长度不应小于 2 倍板宽;腹板拼接宽度不应小于 300mm,长度不应小于 600mm;腹板与翼缘板对接接头应错开 200mm以上,并注意躲开加肋筋,设计要求构件连接需等强连接,在对接焊缝施焊前要按规范打坡口,并用砂轮机打摩光滑方可进行施焊,保证外型均匀、成型较好,焊道与焊道、焊道与基本金属间过度较平滑,焊渣和飞溅物要基本清除干净。对接焊缝焊接完毕。24 小时方可进行超声波探伤,以保证构件等强连接。
1(1).png
吊车梁总长36m,142 线属拟截柱位置正处于13 处,此处承接屋面荷载,弯矩最大,为此需改变拼接位置。此段托梁依据吊车梁下料要求进行制作。
见下料排版图:
1.png
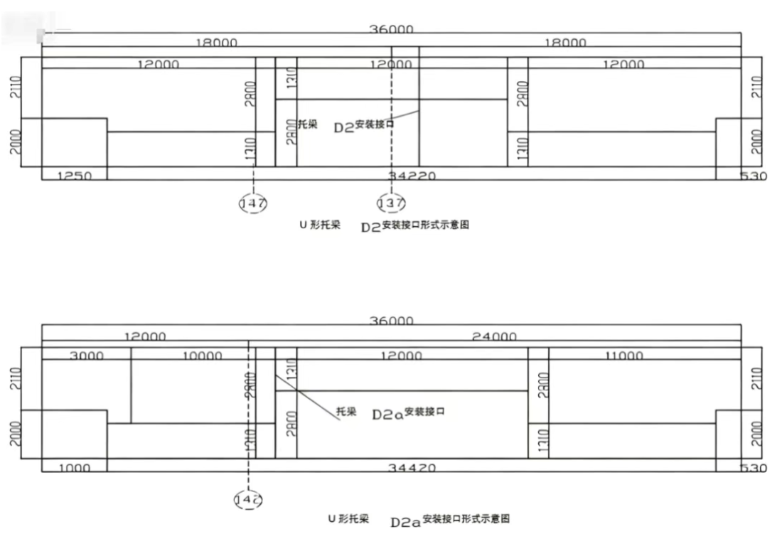
根据安装现场实际情况: U列托梁无法达到整体吊装条件,需在施工现
场进行安装空中接口(见下示意图):
2(1).png
现场需搭设吊车梁拼装焊接平台。将搭设平台的部位场地垫高夯压整平,平台用 -12mm钢板铺设,必须平整,上平面用水准仪超平, 误差小于 2mm。
2.png
吊车梁外形尺寸的允许偏差:
焊接顺序在焊接工程师指导下进行,对装配后的构件焊接时,尽量控制构件的整体焊接变形,采用手工电弧焊。参加工程施工的焊工均必须持劳动局发的“焊工合格证”方可施焊。对于长焊缝,采用交叉对称焊接,焊缝要保持平整,均匀和熔透。每道焊缝完工后,必须将焊渣、飞溅物清除干净。
焊接  H 钢角焊缝采用船形焊。当厚度不等时,取 α<45°,使熔合区偏向厚板一侧。
5.png
柱间支撑、系杆、水平支撑等在地上放地样组装,连接板点焊固定。
对已装配完的构件,要及时按图纸构件清单编号进行标注。
质量员应根据图纸技术要求及几何尺寸对所装配的每一构件的几何尺寸、焊接质量、 标高、定位尺寸等进行检查, 如出现确认有误的立即返工。
并做好检查记录。

3.6 、焊接

材料 Q235B焊材选用选择 E4303;Q345焊材选用 E5016。对装配焊工的要求同焊接焊工。不得使用因保管不善而受潮变质结块的焊剂,以及药皮开裂、脱落、焊芯生锈的焊条。
构件装配完成后,焊工应按装配的质量要求进行复检。复检合格后才能进行焊接。焊接前应消除焊口左右各 50mm范围内的铁锈、油污、泥土等脏物。焊接完成后应消除焊缝表面的熔渣和飞溅物。
除施工图纸注明外,厚度 ≤6㎜的钢材拼接,不开坡口,厚度 >6㎜的,开单面 V 形坡口(吊车梁、托梁上、下翼缘焊接)。
H型钢四条主缝在焊接胎具上进行船形位置埋弧自动焊, 采用对称交错的焊接顺序。 角焊缝采用气体保护焊或手工焊焊接,焊角高度同较薄母材厚度,每条焊缝应一次性完成。
采用二氧化碳气体保护焊时,应有气体集中供应装置。以便调节压力、气体比例。
焊缝引弧板应用热气割不得用锤击落。并恢复坡口,打磨检查。焊缝坡口超标时不得采取填加金属块或焊条的方法处理。

3.7 、检验与矫正

检验

A.  碳素结构钢应在焊缝冷却到环境温度。 低合金结构钢应在焊接完成 24 小时后进行外观及内部质量检验。
B. 构件几何尺寸要求同装配要求。
C. 无损检测应在外观检验合格后进行,并将结果及时反馈给焊工。进行超声波探伤时应按每条焊缝的 20%进行,其不合格部位应进行质量分析,定出返修措施后方可进行返修,同一部位的返修次数不得超过 2 次。

矫正

对于焊接变形,可采用机械、人工和火焰矫正。火焰矫正的加热温度应控制在 600℃--800 ℃左右, 呈缨红色,加热线的宽度、 温度及位置应根据变形误差的大小来决定,在火焰矫正时严禁浇水。

构件外观修磨

构件尺寸及焊缝外观、无损检测合格后,必须对构件表面进行修磨,采用砂轮磨光机对构件端面的菱角 . 毛刺进行打磨, 对焊缝表面及周围的焊疤 瘤及飞溅物进行清理,磨光,对钢材表面的凹痕及弧坑进行修补并磨平。
根据规范要求焊缝要求进行超声波探伤, 一级焊缝 100%超声波探伤,二级焊缝 20%超声波探伤。

3.8 、涂装

钢构件的除锈和涂装应在制作质量检验合格后进行。
除锈方法,按要求采用喷砂除锈 Sa2级。
钢构件除锈完成后应在 24h 内涂好第一道防锈底漆,涂装时,前一涂层干燥后方可涂下一道涂层,当天使用的涂料应在当天配置。
钢构件连接接头的接触面和工地焊缝两侧 50mm范围内不得涂刷油漆。

3.8.5 、涂层厚度及允许偏差

6.png
涂装时构件表面有结露时不得涂装,涂装后 4h 内不得淋雨,涂层应均匀饱满,不得漏涂  . 误涂,表面不应有起泡、脱皮和返锈,并无明显皱皮、流坠等缺陷。
涂装完毕后,应在构件上标注构件的原编号。

相关文章

回到顶部
请复制以下网址分享
托梁截柱钢结构制安工程的施工方法
https://m.gc5.com/jggc/lilun/10463854.html