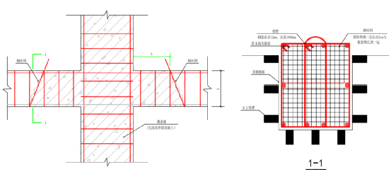
一、施工技术要点: 1.当柱、墙混凝土设计强度比梁、板混凝土设计强度高一个等级时,需提前与设计单位沟通确认浇筑方案:经设计单位同意后,柱、墙位置梁、板高度范围内的混凝土,可采用与梁、板同强度等级的混凝土浇筑;若设计单位不同意,需遵循“先高后低”浇筑原则,先浇筑柱、墙高强度混凝土,再浇筑梁、板低强度混凝土,且高标号混凝土浇筑高度需超过低标号混凝土界面不少于200mm,确保交界部位强度衔接。 2.当柱、墙混凝土设计强度比梁、板混凝土设计强度高两个等级及以上时,必须在交界区域采取可靠分隔措施(如采用快硬钢板、密目钢丝网等),防止两种标号混凝土混浇。分隔位置需设置在低强度等级构件(梁、板)内,且距高强度等级构件(柱、墙)边缘距离为1/2梁高,同时该距离不得小于500mm,确保分隔规范、有效。 不同标号混凝土隔离示意图 不同标号混凝土隔离效果图
不同标号混凝土隔离实例图 梁柱混凝土标高不同做法装置示意图 说明:
1.梁柱接头不同混凝土,采用钢丝网,钢丝网呈90度放置,配合周转背楞稳定钢丝网位置,并控制混凝土流向。在混凝土初凝前将背楞取出,可周转使用: 2.混凝土浇筑过程中,分离装置与梁内预埋的钢丝网结合使用。柱头混凝土浇筑至设计标高,找平后使装置内的混凝土与板面标高一致,保证强柱弱梁的要求; 3.混凝土浇筑过程中,先浇筑强度等级高的混凝土,待强度等级高的混凝土初凝前进行强度等级低的混凝土浇筑。



