首页

  1. 首页
  2. 建筑论文
  3. 内容

塔吊基础(桩基础)专项施工方案,建议收藏!

一、工程概况

本工程为剪力墙结构高层住宅,总建筑面积万平米,由栋高层及地下车库组成。根据施工部署,拟安装台塔吊,型号为,臂长m,最终安装高度m。
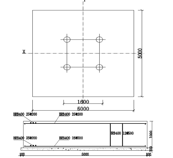
根据地勘报告,场地土层主要为,地下水位埋深m。塔吊基础拟采用旋挖钻孔灌注桩基础,桩径mm,桩长m,持力层为层。承台尺寸mm×mm×mm,混凝土强度等级C35,配筋按计算确定。(根据具体项目情况填写)
1 - 副本(1).png

二、编制依据

《塔式起重机混凝土基础工程技术规程》JGJ/T187、《建筑桩基技术规范》JGJ94、《混凝土结构工程施工质量验收规范》GB50204、《危险性较大的分部分项工程安全管理规定》及塔吊使用说明书、地勘报告、施工图纸等。

三、施工计划

  1. 进度计划:单台塔吊基础施工工期控制在7天内,包括桩基施工、承台钢筋绑扎、混凝土浇筑及养护。各塔吊基础按施工流水段依次展开。
  2. 材料计划:钢筋、商品混凝土提前报备,预埋地脚螺栓由塔吊安装单位提供并复核。混凝土每台塔吊基础留置2组试块。
  3. 设备计划:旋挖钻机1台、汽车吊1台、钢筋加工设备、振捣棒等。

四、施工工艺

1. 工艺流程:
测量放线→钻机就位→成孔→清孔→吊放钢筋笼→安放格构柱(如有)→二次清孔→浇筑桩身混凝土→开挖承台土方→破除桩头→浇筑垫层→绑扎承台钢筋→预埋地脚螺栓→支模→浇筑承台混凝土→养护。
2. 关键工序控制:
桩基施工:钻孔垂直度偏差<1%,孔底沉渣≤50mm。钢筋笼主筋间距±10mm,箍筋间距±20mm,保护层厚度按设计要求。这是最关键的,孔桩必须开挖至持力层上,且嵌岩大于500mm。
地脚螺栓预埋:采用定位钢板固定,与承台钢筋焊接牢固,保证中心距±2mm、标高±20mm。混凝土浇筑前须经塔吊安装单位及项目部复核。
承台施工:模板安装平整,混凝土分层浇筑,每层厚度不超过500mm,振捣密实。终凝前二次收面,覆盖塑料薄膜保湿养护不少于7天。
1 - 副本.png

五、验收要求

  1. 桩基验收:成孔后检查孔径、孔深、垂直度、沉渣厚度。钢筋笼安装后检查主筋间距、箍筋间距、焊接质量。混凝土强度以试块报告为准。
  2. 承台验收:模板尺寸、钢筋规格间距、保护层厚度符合设计。预埋螺栓位置偏差满足要求。
  3. 验收程序:每道工序完成后由项目质检员自检,合格后报监理验收。全部完成后组织施工、监理、安装单位联合验收,合格后方可进行塔吊安装。

六、安全保证措施

  1. 桩基施工:钻机作业区域设警戒线,专人指挥。夜间施工照明充足,电缆线架空布置。
  2. 基坑开挖:承台开挖按1:0.5放坡,坑边1m内严禁堆土。坑底留操作空间不小于300mm。
  3. 钢筋绑扎:高处绑扎时搭设操作架,严禁攀爬钢筋骨架。
  4. 混凝土浇筑:振捣手穿绝缘鞋戴手套,开关箱设置漏电保护器。
  5. 监测监控:基础施工期间每周观测一次沉降位移,遇大雨、大风等异常天气加密观测。记录表存档备查。

七、应急处置

  1. 组织机构:成立以项目经理为组长的应急小组,明确通信联络方式并在现场公示。
  2. 应急物资:配备钢管、千斤顶、水泵、急救包等,存放于指定位置。
  3. 应急措施:发生坍塌时立即疏散人员,封锁现场,组织救援。发生触电时先切断电源再施救。发生物体打击时止血包扎后送医。
  4. 医院路线:规划两条最近医院路线,现场张贴示意图。

八、计算书摘要

经计算,单桩竖向承载力特征值满足塔吊最大荷载要求。承台抗弯、抗剪、抗冲切验算均满足规范要求。格构柱(如有)稳定性验算合格。基础沉降量小于规范限值。详细计算过程附后。
1(1).png

九、附图

  1. 塔吊平面布置图
  2. 塔吊基础定位图
  3. 基础配筋及预埋件详图
  4. 桩基大样图
  5. 监测点布置图

相关文章

回到顶部
请复制以下网址分享
塔吊基础(桩基础)专项施工方案,建议收藏!
https://m.gc5.com/jzgc/jcll/10463079.html