首页
分享
首页
别墅图纸
内容
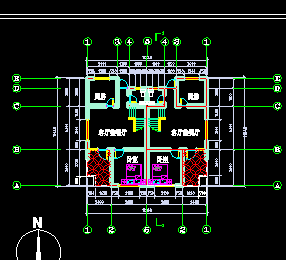
三层小别墅建筑设计图纸
资料大小
:189 KB
运行环境
:NT/2000/XP/2003/Vista
资料语言
:简体中文
资料评级
:
授权形式
:资料共享
更新时间
:2016-08-17 09:06
发布作者
:感觉自己萌萌哒i
插件情况
:
无插件,请放心使用
文件类型
:
RAR
解压密码
:gc5.com
安全检测
:
瑞星
江民
卡巴斯基
金山
介绍: 三层小别墅建筑设计图纸包括一层平面图、二层平面图、三层平面图、剖面图、西立面图等。
查看全文
点击进入下载
(需要
0
积分)
相关文章
三层小别墅建筑设计图纸
20160729
三层小别墅建筑设计图纸
20160730
三层小别墅建筑设计图纸
20160811
三层小别墅建筑设计图纸
20160813
三层小别墅建筑设计图纸
20160817
回到顶部
请复制以下网址分享
三层小别墅建筑设计图纸
https://m.gc5.com/jzgc/jztz/bieshu/10894237.html