首页
首页
建筑图纸
别墅图纸
别墅图纸
度假区三层别墅建筑设计图纸
度假区三层别墅建筑设计图纸包括三层平面图、屋顶平面图、1-1剖面图、正立面图、底层平面图、二层平面图等。
超豪华三层别墅建筑设计图纸
超豪华三层别墅建筑设计图纸包括三层平面图、屋顶平面图、剖面图、立面图、首层平面图、二层平面图等。
成套二层别墅建筑施工图纸
成套二层别墅建筑施工图纸包括阁楼平面图、屋面平面图、栏杆详图、1-1剖面图、楼梯剖面图、二层平面图、首层平面图等。
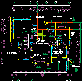
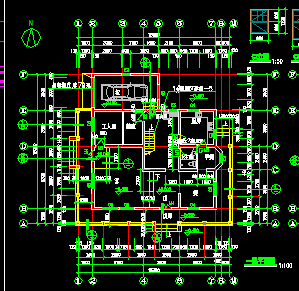
二层别墅建筑设计图纸
二层别墅建筑设计图纸包括一层平面图、夹层平面图、二层平面图、阁楼平面图、楼梯底层平面图、东立面图、屋顶平面图、1-1剖面图等。
四层别墅建筑结构施工图纸
四层别墅建筑结构施工图纸包括二层平面图、一层平面图、轴正立面图、三层平面图、四层平面图、四层平面图、背立面图、基础梁承台平面图、人工挖孔桩定位图等。
庄园别墅建筑设计图纸
庄园别墅建筑设计图纸包括平面图、立面图、剖面图等。
大单体二层别墅建筑设计图纸
大单体二层别墅建筑设计图纸包括阁楼层平面图、屋顶平面图、轴立面图、一层平面图、二层平面图、1-1剖面图等。
大型三层别墅建筑设计图纸
大型三层别墅建筑设计图纸包括屋顶平面图、剖面图、立面图、总平面图、首层平面图、二层平面图、三层平面图、四层平面图、轴立面图等。
单栋三层别墅建筑设计图纸
单栋三层别墅建筑设计图纸包括阁楼层平面图、屋面层平面图、底层平面图、东立面图、三层平面图、剖面图、凸窗平面图等。
单栋二层小别墅建筑设计图纸
单栋二层小别墅建筑设计图纸包括底层平面图、底层平面图、二层平面图、阁楼层平面图、屋顶层平面图等。
单体三层别墅建筑设计图纸
单体三层别墅建筑设计图纸包括一层平面图、三层平面图、二层平面图、总平面图、正立面图等
单体三层别墅建筑施工图纸
单体三层别墅建筑施工图纸包括首层平面图、二层平面图、东立面图、1-1剖面图、三层平面图、屋顶平面图等。
德式三层小别墅建筑设计图纸
德式三层小别墅建筑设计图纸包括剖面图、西立面图、半地下室层平面图、二层平面图、一层平面图、三层平面图等。
低成本小型别墅建筑设计图纸
低成本小型别墅建筑设计图纸包括墙身节点图、阳台大样图、天沟大样图、一楼栏河大样图、屋面平面图等。
二层别墅建筑结构设计图纸
二层别墅建筑结构设计图纸包括一层平面图、二层平面图、屋面平面图、南立面图、基础平面图、纵向钢筋示意图、屋面结构平面图、二层结构平面图等。
二层别墅建筑设计图纸
二层别墅建筑设计图纸包括一层平面图、二层平面图、1#楼梯一层平面详图、剖面图、屋顶层平面图、阁楼层平面图、北立面图等。
二层别墅建筑设计图纸
二层别墅建筑设计图纸包括一层平面图、二层平面图、阁楼层平面图、1-1剖面图、屋顶平面图、东立面图、1#楼梯二层平面详图等。
某小区二层别墅建筑设计图纸
某小区二层别墅建筑设计图纸包括一层平面图、二层平面图、阁楼层平面图、屋顶平面图、南立面图、1-1剖面图、节点详图等。
山庄二层别墅建筑设计图纸
山庄二层别墅建筑设计图纸包括首层平面图、负一层平面图、二层平面图、A-A剖面图、立面图、天面平面图、梯顶平面图、阳台立面图、柱子造型大样图、正门大样图等。
三层别墅建筑全套设计图纸
三层别墅建筑全套设计图纸包括三层平面图、屋顶平面图、立面图、一层平面图、二层平面图、总平面图、地下室平面图、I-I剖面图、卫生间A详图、楼梯剖面图等。
首页
上一页
下一页
尾页