首页
分享
首页
建筑规划图
内容
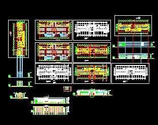
某医院病房初步设计图
资料大小
:1.5 MB
运行环境
:NT/2000/XP/2003/Vista
资料语言
:简体中文
资料评级
:
授权形式
:资料共享
更新时间
:2014-03-08 16:42
发布作者
:乔巴和大脸猫
插件情况
:
无插件,请放心使用
文件类型
:
RAR
解压密码
:gc5.com
安全检测
:
瑞星
江民
卡巴斯基
金山
介绍: 某医院病房里初步设计图,包括地下一层平面图,四层平面图,地下一层平面图,五层平面图,一层平面图,二三层平面图等,供各位参考
查看全文
点击进入下载
(需要
0
积分)
相关文章
某医院病房初步设计图
20131012
某医院病房初步设计图
20140308
某医院病房楼初步设计图
20130609
回到顶部
请复制以下网址分享
某医院病房初步设计图
https://m.gc5.com/jzgc/jztz/guihua/10623849.html