首页

  1. 首页
  2. 工业、农业建筑
  3. 内容

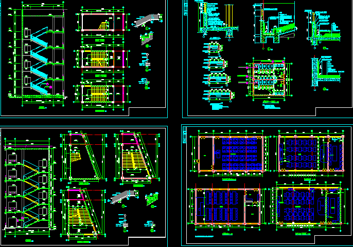
某学校实验楼建筑施工图

  • 资料大小:2.39 MB
  • 运行环境:NT/2000/XP/2003/Vista
  • 资料语言:简体中文
  • 资料评级
  • 授权形式:资料共享
  • 更新时间:2016-09-03 16:45
  • 发布作者:嘿,叫你呢
  • 插件情况 无插件,请放心使用
  • 文件类型 RAR
  • 解压密码:gc5.com
  • 安全检测 瑞星 江民 卡巴斯基 金山
某学校实验楼建筑施工图
介绍: 本工程为某中学实验楼,建筑面积为6878.7㎡;建筑层数:五层;建筑高度:21.400m,建筑耐火等级:II级;屋面防水等级:II级。结构类型:框架结构。设计年限:二级50~100年。 某学校实验楼建筑施工图,包括平面图、立面图、剖面图等,供大家参考!
点击进入下载 (需要 0 积分)

相关文章

回到顶部
请复制以下网址分享
某学校实验楼建筑施工图
https://m.gc5.com/jzgc/jztz/gyny/10901078.html