首页
分享
首页
工业、农业建筑
内容
迎宾台建筑设计图纸
资料大小
:242 KB
运行环境
:NT/2000/XP/2003/Vista
资料语言
:简体中文
资料评级
:
授权形式
:资料共享
更新时间
:2016-12-08 13:59
发布作者
:叫我小可爱i
插件情况
:
无插件,请放心使用
文件类型
:
RAR
解压密码
:gc5.com
安全检测
:
瑞星
江民
卡巴斯基
金山
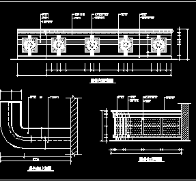
介绍: 迎宾台建筑设计图纸包括服务台1正视图、服务台3上视图等。
查看全文
点击进入下载
(需要
0
积分)
相关文章
迎宾台建筑设计图纸
20160716
迎宾台建筑设计图纸
20161208
迎宾台建筑设计图纸
20160909
迎宾台建筑设计图纸
20170528
某迎宾台建筑设计图纸
20160422
回到顶部
请复制以下网址分享
迎宾台建筑设计图纸
https://m.gc5.com/jzgc/jztz/gyny/10913480.html