首页

  1. 首页
  2. 工业、农业建筑
  3. 内容

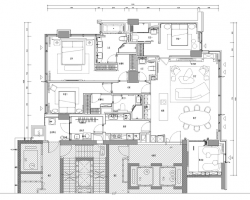
顶级豪宅270㎡ 平层样板间CAD施工图

  • 资料大小:42 MB
  • 运行环境:NT/2000/XP/2003/Vista
  • 资料语言:简体中文
  • 资料评级
  • 授权形式:资料共享
  • 更新时间:2026-03-19 15:54
  • 发布作者:adminhunter
  • 插件情况 无插件,请放心使用
  • 文件类型 RAR
  • 解压密码:gc5.com
  • 安全检测 瑞星 江民 卡巴斯基 金山
顶级豪宅270㎡ 平层样板间CAD施工图
介绍: 资料内容包含:全套CAD施工图(封面,图纸目录,施工设计说明,平面系统图,立面系统图,节点大样,柜子图纸等),CAD内装竣工图+强弱电&给排水&智能系统图+摄影等
点击进入下载 (需要 0 积分)

相关文章

回到顶部
请复制以下网址分享
顶级豪宅270㎡ 平层样板间CAD施工图
https://m.gc5.com/jzgc/jztz/gyny/11159256.html