首页

  1. 首页
  2. 工业、农业建筑
  3. 内容

现代中式民宿酒店全套CAD施工图

  • 资料大小:36.8 MB
  • 运行环境:NT/2000/XP/2003/Vista
  • 资料语言:简体中文
  • 资料评级
  • 授权形式:资料共享
  • 更新时间:2026-03-26 20:56
  • 发布作者:adminhunter
  • 插件情况 无插件,请放心使用
  • 文件类型 RAR
  • 解压密码:gc5.com
  • 安全检测 瑞星 江民 卡巴斯基 金山
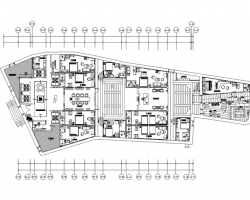
现代中式民宿酒店全套CAD施工图
介绍: 内容包含:01.图纸目录;02.总平面图;03.早餐休闲区;04.茶艺区;05.书画区;06—23.各种房型平立面图;24.后花园;25.门头立面图25.门头大样图。
点击进入下载 (需要 0 积分)

相关文章

回到顶部
请复制以下网址分享
现代中式民宿酒店全套CAD施工图
https://m.gc5.com/jzgc/jztz/gyny/11159339.html