首页

  1. 首页
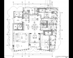
  2. 建筑户型平面图
  3. 内容

保亿观云钱塘大平层样板间CAD施工图

  • 资料大小:170 MB
  • 运行环境:NT/2000/XP/2003/Vista
  • 资料语言:简体中文
  • 资料评级
  • 授权形式:资料共享
  • 更新时间:2026-03-19 14:47
  • 发布作者:adminhunter
  • 插件情况 无插件,请放心使用
  • 文件类型 RAR
  • 解压密码:gc5.com
  • 安全检测 瑞星 江民 卡巴斯基 金山
保亿观云钱塘大平层样板间CAD施工图
介绍: 保亿观云钱塘C户型485m²大平层样板间CAD施工图包含:全套CAD施工图(封面,图纸目录,施工设计说明,平面系统图,立面系统图,节点大样,柜子图纸等),CAD施工图+PPT方案46页+效果图16张等
点击进入下载 (需要 0 积分)

相关文章

回到顶部
请复制以下网址分享
保亿观云钱塘大平层样板间CAD施工图
https://m.gc5.com/jzgc/jztz/jzhx/11159247.html