首页
分享
首页
建筑详图、图库
内容
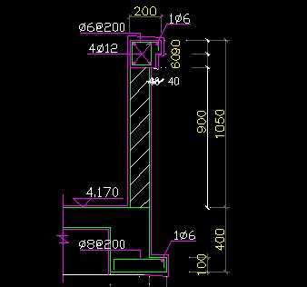
阳台护栏详图
资料大小
:2.6 MB
运行环境
:NT/2000/XP/2003/Vista
资料语言
:简体中文
资料评级
:
授权形式
:资料共享
更新时间
:2012-10-23 12:01
发布作者
:瞎扯淡
插件情况
:
无插件,请放心使用
文件类型
:
RAR
解压密码
:gc5.com
安全检测
:
瑞星
江民
卡巴斯基
金山
介绍: 该图为阳台护栏详图,CAD2008版,供各位参考。
查看全文
点击进入下载
(需要
0
积分)
相关文章
阳台护栏详图
20121023
阳台护栏详图图纸
20121023
阳台护栏详图
20121026
18套铁艺护栏及欧式栏杆节点详图
20220518
水上别墅施工图
20150124
回到顶部
请复制以下网址分享
阳台护栏详图
https://m.gc5.com/jzgc/jztz/tuku/10369684.html