首页
分享
首页
建筑详图、图库
内容
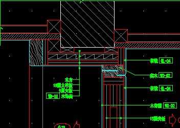
卫生间装饰木门详图
资料大小
:540 KB
运行环境
:NT/2000/XP/2003/Vista
资料语言
:简体中文
资料评级
:
授权形式
:资料共享
更新时间
:2012-10-24 15:07
发布作者
:瞎扯淡
插件情况
:
无插件,请放心使用
文件类型
:
RAR
解压密码
:gc5.com
安全检测
:
瑞星
江民
卡巴斯基
金山
介绍: 该图为卫生间装饰木门详图,内容包括有:单开门立面,双开门立面,等,CAD2008版,供各位参考。
查看全文
点击进入下载
(需要
0
积分)
相关文章
卫生间装饰木门详图
20121024
大楼装饰工程施工组织设计37p
20150911
大楼装饰工程施工组织设计37p
20150603
科技研发中心装饰装修工程招投标方案
20190518
宁夏建筑设计图集
20110602
回到顶部
请复制以下网址分享
卫生间装饰木门详图
https://m.gc5.com/jzgc/jztz/tuku/10370397.html