首页
分享
首页
建筑详图、图库
内容
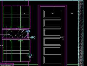
入户阳台装修立面图
资料大小
:100 KB
运行环境
:NT/2000/XP/2003/Vista
资料语言
:简体中文
资料评级
:
授权形式
:资料共享
更新时间
:2012-10-30 09:27
发布作者
:瞎扯淡
插件情况
:
无插件,请放心使用
文件类型
:
RAR
解压密码
:gc5.com
安全检测
:
瑞星
江民
卡巴斯基
金山
介绍: 该图为入户阳台装修立面图,内容包括有:入户阳台立面图,鞋柜剖面图等,CAD2008版,供各位参考。
查看全文
点击进入下载
(需要
0
积分)
相关文章
入户阳台装修立面图
20121030
四房两厅两阳台住宅装修施工图纸
20180320
五房两厅三卫一厨五阳台住宅装修施工图纸
20180315
四房两厅一厨两卫两阳台住宅装修施工图纸
20180315
五房两厅两卫三阳台住宅装修施工图纸
20180316
回到顶部
请复制以下网址分享
入户阳台装修立面图
https://m.gc5.com/jzgc/jztz/tuku/10373116.html