首页
分享
首页
建筑详图、图库
内容
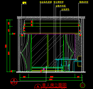
标准单人房装修立面详图
资料大小
:466 KB
运行环境
:NT/2000/XP/2003/Vista
资料语言
:简体中文
资料评级
:
授权形式
:资料共享
更新时间
:2016-05-12 13:40
发布作者
:夜樱夜SKY
插件情况
:
无插件,请放心使用
文件类型
:
RAR
解压密码
:gc5.com
安全检测
:
瑞星
江民
卡巴斯基
金山
介绍: 标准单人房立面详图包括单人房立面图、壁龛剖面图、床靠背剖面图、客房电视墙剖面图,供参考!
查看全文
点击进入下载
(需要
0
积分)
相关文章
标准单人房装修详图
20170314
标准单人房装修立面详图
20160724
标准单人房装修立面详图
20160512
标准单人房装修设计详图
20181109
单人房卫生间装修节点详图
20181109
回到顶部
请复制以下网址分享
标准单人房装修立面详图
https://m.gc5.com/jzgc/jztz/tuku/10865264.html