首页
分享
首页
建筑详图、图库
内容
观光电梯详图
资料大小
:214 KB
运行环境
:NT/2000/XP/2003/Vista
资料语言
:简体中文
资料评级
:
授权形式
:资料共享
更新时间
:2016-06-13 13:44
发布作者
:2794901225
插件情况
:
无插件,请放心使用
文件类型
:
RAR
解压密码
:gc5.com
安全检测
:
瑞星
江民
卡巴斯基
金山
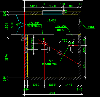
介绍: 观光电梯详图包括电梯A井道1-3层平面详图、电梯A井道地下层平面详图、电梯A屋顶机房平面详图、1-1剖面图、电梯B机房平面图等
查看全文
点击进入下载
(需要
0
积分)
相关文章
观光电梯设计详图
20170216
观光电梯详图
20160613
观光电梯详图
20160512
观光电梯设计详图
20141115
观光电梯设计详图
20170216
回到顶部
请复制以下网址分享
观光电梯详图
https://m.gc5.com/jzgc/jztz/tuku/10875466.html