首页
首页
建筑图纸
建筑详图、图库
建筑详图、图库
暗扣聚氨酯墙板窗台、窗楣泛水详图
该图为暗扣聚氨酯墙板窗台、窗楣泛水详图,CAD2008版,供各位参考。
某中学教学楼平面图
某中学教学楼投标方案,CAD2008版本,供大家参考
暗扣聚氨酯墙板与砖墙连接详图
该图为暗扣聚氨酯墙板与砖墙连接详图,CAD2008版,供各位参考。
高层办公下附设的人防工程平面图
高层办公下附设的人防工程 平时为储藏室 战时人防 说明 平面 口部详图,CAD2008版本,供大家参考
暗扣聚氨酯墙板纵向搭接详图
该图为暗扣聚氨酯墙板纵向搭接详图,CAD2008版,供各位参考。
专卖店设计排版图
专卖店的室内设计排版图,主要包括平面图,CAD2008版本,供大家参考
百叶窗横剖节点
该图为百叶窗横剖节点,CAD2008版,供各位参考。
某县城国税局大楼立面图
一个国税局大楼的平面图,立面图,CAD2008版本,供大家参考
板基施工缝大样
该图为板基施工缝大样,CAD2008版,供各位参考。
某建筑方案图
某建筑方案图,原创方案图,CAD2008版本,供大家参考
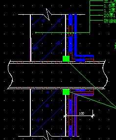
暴露式屋面-女儿墙泛水防水做法
该图为暴露式屋面-女儿墙泛水防水做法,CAD2008版,供各位参考。
壁式扶手大样
该图为壁式扶手大样,内容包括有:立断面图等,CAD2008版,供各位参考。
住宅高层户型图集
高层电梯户型图,CAD2008版本,供大家参考
画廊设计平立面图
画廊设计的平立剖面的制图,还有画廊的排版设计,CAD2008版本,供大家参考
玻璃上端安装节点大样
该图为玻璃上端安装节点大样,CAD2008版,供各位参考。
敬老院全套施工图
养老院平面设计图,功能分区合理,CAD2008版本,供大家参考
玻璃砖大样图
该图为玻璃砖大样图,CAD2008版,供各位参考。
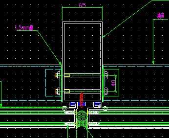
侧壁预留孔洞及管道位置防水大样图
该图为侧壁预留孔洞及管道位置防水大样图,CAD2008版,供各位参考。
某检查院办公室施工图
某检查院办公室施工图,CAD2008版本,供大家参考
车道不锈钢栏杆详图
该图为车道不锈钢栏杆详图,CAD2008版,供各位参考。
首页
上一页
下一页
尾页