首页
首页
建筑图纸
建筑详图、图库
建筑详图、图库
车道截水沟大样
该图为车道截水沟大样,CAD2008版,供各位参考。
承载柱下锚座节点详图
该图为承载柱下锚座节点详图,CAD2008版,供各位参考。
出入口平台及踏步饰材示意图
该图为出入口平台及踏步饰材示意图,CAD2008版,供各位参考。
厨房截水沟大样图
该图为厨房截水沟大样图,CAD2008版,供各位参考。
展览馆方案设计平面图
展览馆方案设计平面图,CAD2008版本,供大家参考
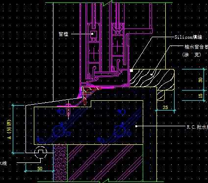
窗户披水板及滴水详图
该图为窗户披水板及滴水详图,CAD2008版,供各位参考。
某农村房屋设计图纸
农村房子某农村房屋设计图纸,很实惠的民房,CAD2008版本,供大家参考
窗台板详图
该图为窗台板详图,CAD2008版,供各位参考。
服务厅施工图
服务厅整套施工图,含外观效果图,CAD2008版本,供大家参考
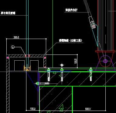
窗台埋板安装节点大样
该图为窗台埋板安装节点大样,CAD2008版,供各位参考。
公共厕所建筑施工图
星级厕所施工图,包含建筑、结构、给排水、暖通、电气设计,CAD2008版本,供大家参考
大厅侧门制作、安装图
该图为大厅侧门制作、安装图,内容包括有:扶手,平面图,CAD2008版,供各位参考。
景观岗亭施工图设计施工图
某景观岗亭施工图设计,设计精巧,CAD2008版本,供大家参考
大厅正门制作、安装图
该图为大厅正门制作、安装图,内容包括有:平面图,立面图,扶手等,CAD2008版,供各位参考。
某部队战士宿舍楼平面图
建筑用途: 宿舍占地面积: 1437.04平方米;建筑面积: 9044.06平方米,CAD2008版本,供大家参考
建筑立面平面图
适合绘制欧式古典建筑立面平面图,,CAD2008版本,供大家参考
围墙设计图
围墙设计图,CAD2008版本,供大家参考
大厅正门制作、安装图
该图为大厅正门制作、安装图,CAD2008版,供各位参考。
滴水线大样图
该图为滴水线大样图,内容包括有:室外导沟详图,CAD2008版,供各位参考。
地坪不锈钢排水导沟详图
该图为地坪不锈钢排水导沟详图,CAD2008版,供各位参考。
首页
上一页
下一页
尾页