首页
首页
建筑图纸
建筑详图、图库
建筑详图、图库
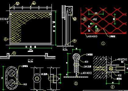
各型铁栅门(四片)及节点祥图
该图为各型铁栅门(四片)及节点祥图,CAD2008版,供各位参考。
各型铁栅门(四片)及节点祥图
该图为各型铁栅门(四片)及节点祥图,CAD2008版,供各位参考。
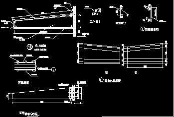
各异型铁栅门详图
该图为各异型铁栅门,CAD2008版,供各位参考。
JM6空格卷帘门及节点详图
该图为JM6空格卷帘门及节点详图,CAD2008版,供各位参考。
PVC塑胶地砖地坪大样图
该图为PVC塑胶地砖地坪大样图,CAD2008版,供各位参考。
YX09a型雨蓬图纸
该图为YX09a型雨蓬图纸,CAD2008版,供各位参考。
八角楼屋顶檐口
该图为八角楼屋顶檐口,CAD2008版,供各位参考。
半隐框幕墙防火节点图
该图为半隐框幕墙防火节点图,CAD2008版,供各位参考。
北立面3-6F窗台节点图
该图为北立面3-6F窗台节点图,CAD2008版,供各位参考。
厕所石材门槛大样图
该图为厕所石材门槛大样图,CAD2008版,供各位参考。
底层花岗岩阳角节点图
该图为底层花岗岩阳角节点图,CAD2008版,供各位参考。
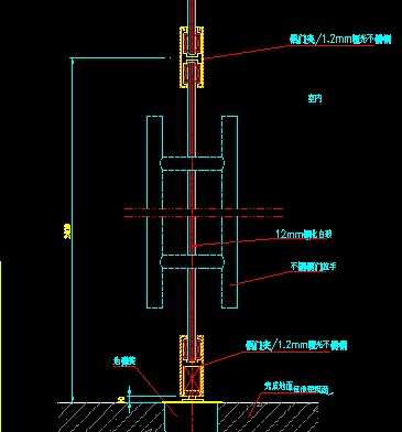
地簧门纵剖节点图
该图为地簧门纵剖节点图,CAD2008版,供各位参考。
地坪高低差石材收边详图
该图为地坪高低差石材收边详图,CAD2008版,供各位参考。
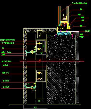
地下(底版及外墙)防水大样图
该图为地下(底版及外墙)防水大样图,CAD2008版,供各位参考。
地下室頂版防水大樣
该图为地下室頂版防水大樣,CAD2008版,供各位参考。
地下停车库种植屋面防水节点图
该图为地下停车库种植屋面防水节点图,CAD2008版,供各位参考。
多彩油毡瓦屋面
该图为多彩油毡瓦屋面,CAD2008版,供各位参考。
防火门节点图
该图为防火门节点图,CAD2008版,供各位参考。
防雷节点图
该图为防雷节点图,CAD2008版,供各位参考。
干挂花岗岩纵剖节点图
该图为干挂花岗岩纵剖节点图,CAD2008版,供各位参考。
首页
上一页
下一页
尾页