首页
首页
建筑图纸
建筑详图、图库
建筑详图、图库
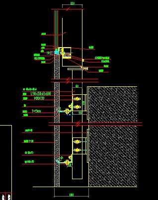
干挂花岗岩纵剖节点图
该图为干挂花岗岩纵剖节点图,CAD2008版,供各位参考。
各种类型铁栅门详图
该图为各种类型铁栅门,CAD2008版,供各位参考。
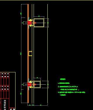
横明竖隐幕墙纵剖节点图
该图为横明竖隐幕墙纵剖节点图,CAD2008版,供各位参考。
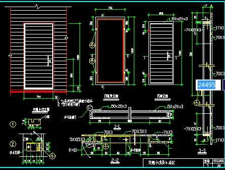
交通小门及节点详图
该图为交通小门及节点详图,CAD2008版,供各位参考。
卷帘盒及卷帘片详图
该图为卷帘盒及卷帘片详图,CAD2008版,供各位参考。
空格卷帘门及节点祥图
该图为空格卷帘门及节点祥图,CAD2008版,供各位参考。
空格卷帘门祥图
该图为空格卷帘门祥图,CAD2008版,供各位参考。
肋玻纵剖节点图
该图为肋玻纵剖节点图,CAD2008版,供各位参考。
帘板卷帘门及节点详图
该图为帘板卷帘门及节点详图,CAD2008版,供各位参考。
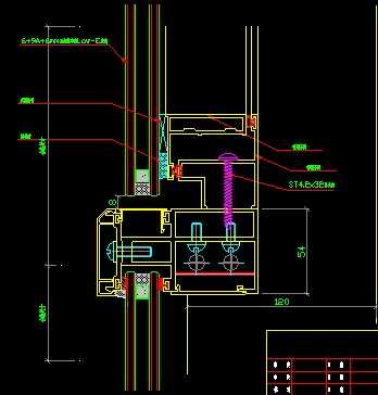
铝合金窗上端节点图
该图为铝合金窗上端节点图,CAD2008版,供各位参考。
铝合金窗下端节点图
该图为铝合金窗下端节点图,CAD2008版,供各位参考。
铝塑板钢龙骨节点图
该图为铝塑板钢龙骨节点图,CAD2008版,供各位参考。
铝塑板幕墙安装要求
该图为铝塑板幕墙安装要求,CAD2008版,供各位参考。
铝塑板幕墙横剖节点图
该图为铝塑板幕墙横剖节点图,CAD2008版,供各位参考。
铝塑板阳角节点图
该图为铝塑板阳角节点图,CAD2008版,供各位参考。
门窗安装节点图
该图为门窗安装节点图,CAD2008版,供各位参考。
磨石子地坪大样图
该图为磨石子地坪大样图,CAD2008版,供各位参考。
幕墙纵剖节点图
该图为幕墙纵剖节点图,CAD2008版,供各位参考。
耐磨硬化地坪大样图
该图为耐磨硬化地坪大样图,CAD2008版,供各位参考。
内墙建筑连接图
该图为内墙建筑连接图,CAD2008版,供各位参考。
首页
上一页
下一页
尾页