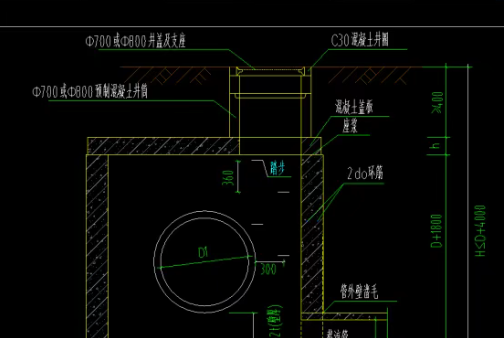
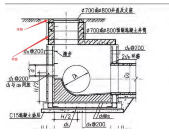
一、位置不同 ——井筒 检查井井筒位于井室之上,井盖之下,它可以是圆形的、矩形的或其他形状,是一个竖直的管状结构,垂直于井室的盖板上部。市政工程中的检查井井筒通常是圆形的,如图集20S515中P57∅700矩形三通砖砌雨水检查井的井筒尺寸为∅700,壁厚240mm。 ——井座 检查井井座位于检查井井盖的下部,是检查井井盖的支撑架底座。如检查井井盖是铸铁或复合材质的,通常是井盖与井座一起成套出售。 ——井圈 检查井井圈位于检查井的最顶部——井盖的外围,通常为圆形或矩形,如图集20S515中P21∅700圆形砖砌雨水检查井的井圈尺寸为∅1180。 二、作用不同 ——井筒 作为人员上下通行的竖向结构,也可用于设备的吊装和运输,提供通风和排水功能,还可用作电缆或管道的敷设空间。井筒上需安装简易的上下爬梯。 ——井座 井座起支撑检查井盖板的作用,防止井盖下沉或移动。 ——井圈 与路面结构面层、检查井井盖密切连接在一起,防止异物进入检查井内,并与井盖一起承受人行、车辆的荷载,保持井盖的稳定性。 三、施工工艺不同 ——井筒 井筒可采用砖砌,也可采用混凝土,如采用混凝土,可现浇,也可预制。现浇的优点是可以根据现场条件灵活调整高度。预制的优点是批量预制,加快施工速度。 ——井座 井座采用混凝土,可现浇,也可预制,以图集20S515为例,井座是现浇的,根据不同管径和盖板覆土厚度设计。 ——井圈 井圈采用混凝土,可现浇,也可预制,通常预制成型,现场安装快速简便,节省施工时间。 四、如何算量 ——井筒 以图集20S515P57∅700矩形三通砖砌雨水检查井为例: 井筒=3.14*[(0.7/2+0.24)*(0.7/2+0.24)-(0.7/2)*(0.7/2)]*高h ——井座 圆形井座算法与上面的井筒相同。如检查井井盖是铸铁或复合材质的,通常是井盖与井座一起成套出售,井座不再计算工程量。 ——井圈 圆形井圈算法与上面的井筒相同。




