首页
首页
园林图纸
小品及配套设施
小品及配套设施
玻璃亭子施工图
玻璃亭子的cad施工图。包括亭子的平面图,顶平面图,立面图,以及索引详图。
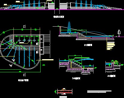
弧形廊架设计详图
弧形廊架设计详图包括弧形廊架平面图 、弧形廊架基础平面布置图 、弧形廊架立面展开图、弧形廊架侧立面图等
景墙施工图纸
L型景墙施工图纸包括景墙平面图、节点详图、剖面图
某古建筑施工图
某古建筑施工图包括一、二层平面图 、三层平面图、屋顶平面图、立面图、楼梯详图、立面图、楼梯详图、节点详图
栏杆设计图
栏杆设计图包括平面图、立面图、剖面图等。供大家参考!
圆亭设计详图
圆亭设计详图包括圆形景亭立面图、剖面图、圆形景亭底平面图、圆形景亭3.2M处平面图、圆形景亭3.9M处平面图等
钢筋砼结构弧形花架设计详图
钢筋砼结构弧形花架设计详图,包括平面图、立面图、剖面图等。供大家参考!
某广场改造施工图
某广场改造施工图包括人行道地面及樹槽大樣、停車位地面構造圖、花池邊緣大樣、柱頭燈標準安裝大樣、高柱燈標準安裝大樣、灌溉水龍頭大樣圖等
带鱼池四角亭施工大样图
带鱼池四角亭施工大样图包括方亭剖面、方亭立面、方亭平面、柱基础剖面图、养鱼池平面等
欧式门卫室设计详图
欧式门卫室设计详图包括门卫室平面图、门卫室顶平面图、门卫室立面图、剖面图、柱大样图、门卫室基础平面图等
隧道洞门花岗石布置施工图
隧道洞门花岗石布置施工图,供大家参考!
江南牌坊施工图纸
江南牌坊施工图纸,包括平面图、立面图、剖面图等。供大家参考!
方形树池施工图
方形树池施工图包括平面图、立面图、剖面图等。供大家参考!
花格设计图
花格设计图,供大家参考!
特色花钵设计详图
特色花钵设计详图,供大家参考!
某六角凉亭施工图纸
某六角凉亭施工图纸包括平面图、立面图、剖面图等。供大家参考!
围墙施工图
围墙施工图包括围墙平面图、围墙立面图、出现150高差时围墙立面图等
中式围墙施工图
中式围墙施工图包括砖砌围墙、断面图、PVC彩色护栏围墙、砖砌围墙、围墙平面面等
喷泉施工图
喷泉施工图包括喷泉平面图、吐水矮墙侧立面图、吐水矮墙4-4剖面图等
喷泉施工图
喷泉施工图包括平面图、立面图、剖面图等。供大家参考!
首页
上一页
下一页
尾页