首页
首页
园林图纸
小品及配套设施
小品及配套设施
某水景施工图
某水景施工图包括水池剖面图、跌水花坛施工图、跌水施工图、喷泉施工图、喷泉施工详图、水景防漏设计等
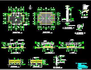
四六角亭施工图
景观小亭子,涉及到四角和六角,运用于小区景观和公园非常适合。
背景墙设计详图
包括龙柱背景浮雕墙平面图、龙柱背景浮雕墙正立面(展开)尺寸图、龙柱背景浮雕墙侧立面图等
水池驳坎详细做法详图
水池驳坎详细做法详图,供大家参考!
景区收票亭施工图
1:木材必须经过防腐处理、清漆两遍,由自攻螺丝固定于方钢管上。2:钢管由膨胀螺栓固定于花岗岩基座上钢管刷油性防锈漆一度,面层再刷调和漆二度。供各位参考
某古建修补设计图
某古建修补设计图,建筑定位时应根据现场发掘情况以关楼原有位置为依据,放线时还应兼顾周围城台的关系及与柔远楼等建筑的中轴线关系。供各位参考
梭子亭设计图
梭子亭设计图,包括梭子亭立面,剖面图,梭子亭平面,屋面平面等,供各位参考
池底驳岸做法图
池底驳岸做法图,包括景观河道剖面大样图,河流驳岸详图,溪流典型剖面详图,河流驳岸详图,河流驳岸详图,景观河道剖面大样图等,供各位参考
池沿驳岸施工图
池沿驳岸施工图,包括悬挑半圆板配筋,湖源头叠水平面放样图,湖驳岸置太湖石做法,湖驳岸做法,景观水池平面图等,供各位参考
某办公楼休闲区域环境设计图
某办公楼休闲区域环境设计图,供各位参考
园林景观假山跌水图
园林景观假山跌水图,包括植物配置表,绿化平面图等,供各位参考
某工业区入口广场廊亭施工图
包括起步区入口假山结构平面放线定位图,剖面图,假山立面图,水幕墙、玻璃长廊及聚龙潭平面尺寸标注图,玻璃长廊基础平面布置图,水幕墙、玻璃长廊材料平面图等
某办公楼绿化平面布置图
某办公楼绿化平面布置图,包括总平面图,总平面定位图,竖向设计图,铺装图,灯光配置图等,供各位参考
园林公共厕所施工图
园林公共厕所施工图,包括公厕屋顶平面图,公厕一层平面图,1-1剖面图,立面图等,供各位参考
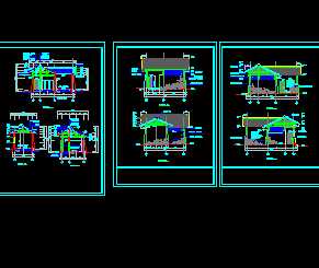
六角亭施工图
六角亭施工图包括平面图、立面图、剖面图等。供大家参考!
岗亭施工图
岗亭施工图包括平面图、立面图、剖面图等。供大家参考!
某公园卫生间施工图
某公园卫生间施工图,包括公厕平面图,公厕屋顶平面图,1-1剖面图,屋盖大样图,公厕立面图等,供各位参考
CAD大门设计详图
CAD大门设计详图,供大家参考!
景观小品图例
景观小品图例,供大家参考!
状元牌坊施工图
状元牌坊施工图包括平面图、立面图、剖面图等。供大家参考!
首页
上一页
下一页
尾页