首页
首页
装修装饰
装修图纸
装修图纸
顶面大理石与石膏线节点设计图纸
顶面大理石与石膏线节点设计图纸包括检修口加固深化节点、卫生间门槛节点大样、顶面大理石与石膏线节点方案、大理石阳角做法节点、大理石横缝v型缝做法图、移门钢结构加固方案。
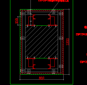
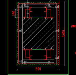
风机加固层反像支撑设计图纸
风机加固层反像支撑设计图纸包括风机加固层反像支撑图。仅供大家参考!
防火卷帘处做法设计图纸
防火卷帘处做法设计图纸包括防火卷帘收口方法。仅供大家参考!
防火卷帘与顶面的收口节点设计图纸
防火卷帘与顶面的收口节点设计图纸包括防火卷帘与顶面的收口节点。仅供大家参考!
电视背景台面钢架设计详图
电视背景台面钢架设计详图包括电视背景台面钢架详图、厨房幕墙窗台面钢架剖面详图、电视背景台面钢架详图。
方柱石材干挂设计图纸
方柱石材干挂设计图纸包括方柱石材干挂。仅供大家参考!
扶梯侧墙立面设计详图
扶梯侧墙立面设计详图包括扶梯侧墙立面详图。仅供大家参考!
吊顶钢架反支撑节点设计图纸
吊顶钢架反支撑节点设计图纸包括呼梯板局部立面图、呼梯板标准详图、预埋钢架节点、吊顶钢架反支撑节点。
吊顶石膏板与幕墙框收口节点设计图纸
吊顶石膏板与幕墙框收口节点设计图纸包括吊顶石膏板与幕墙框收口节点。仅供大家参考!
防火隔墙设计图纸
防火隔墙设计图纸包括五层八层防火隔墙详图、六层十层防火隔墙详图、六层十层防火隔墙详图、七层防火隔墙详图。
防火卷帘变形缝设计图纸
防火卷帘变形缝设计图纸包括防火百叶窗及伸缩缝、地面石才及伸缩缝、防火百叶窗及伸缩缝、第二层大堂与宴会前厅墙处防火卷帘。
电动移门节点设计图纸
电动移门节点设计图纸包括电动移门节点。仅供大家参考!
地面与地板地面与石材设计图纸
地面与地板地面与石材设计图纸包括地面节点大样。仅供大家参考!
方柱石材干挂设计图纸
方柱石材干挂设计图纸包括方柱石材干挂。仅供大家参考!
地毯与木地板平接大样设计图
地毯与木地板平接大样设计图包括地毯与木地板平接大样图。仅供大家参考!
防火卷帘处做法设计图纸
防火卷帘处做法设计图纸包括防火卷帘收口方法。仅供大家参考!
电视背景墙节点设计图纸
电视背景墙节点设计图纸包括电视背景墙节点图。仅供大家参考!
吊顶钢架节点设计图纸
吊顶钢架节点设计图纸包括通风管道过桥大样、木饰面基层、轻钢龙骨纸面石膏板隔墙、轻钢龙骨双层纸面石膏板吊顶、三楼豪华包箱吊顶隐闭、三层会议室吊顶隐蔽等。
防火板门套深化节点设计图纸
防火板门套深化节点设计图纸包括防火板门套深化详图。仅供大家参考!
靠窗石材干挂大样设计图纸
靠窗石材干挂大样设计图纸包括靠窗石材干挂大样。仅供大家参考!
首页
上一页
下一页
尾页