首页
首页
装修装饰
装修图纸
装修图纸
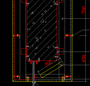
钢架墙面干挂石材平剖设计详图
钢架墙面干挂石材平剖设计详图包括钢架墙面干挂石材平剖详图、钢架墙面干挂石材平剖详图、钢架墙面干挂石材平剖详图。
隔墙龙骨设计图纸
隔墙龙骨设计图纸包括七层隔墙轻钢龙骨骨架。仅供大家参考!
隔墙消防箱暗门设计图纸
隔墙消防箱暗门设计图纸包括售楼处隔墙消防箱暗门剖面详图。仅供大家参考!
隔墙与包柱大样设计图纸
隔墙与包柱大样设计图纸包括包柱大样、隔墙与柱子交接大样、轻钢龙骨包柱。仅供大家参考!
钢架大样设计图纸
钢架大样设计图纸包括钢架分割图等。仅供大家参考!
钢架包管剖面大样设计详图
钢架包管剖面大样设计详图包括厨房钢架包管剖面大样详图、西厨钢架包管剖面大样详图、主卧钢架包管剖面大样详图、工作间钢架包管剖面大样详图。
钢架分割大样设计图纸
钢架分割大样设计图纸包括党建活动室钢架、钢架分割图、党建活动室、视频会议室钢架、财务室钢架、中心会议室钢架分割图。
贵宾休息区与走廊交接屏风设计详图
贵宾休息区与走廊交接屏风设计详图包括贵宾电梯门详图、售楼处窗帘盒剖面详图、贵宾休息区与走廊交接屏风详图、扶梯上下口封堵详图、门套收口详图。
挂梁石材干挂设计图纸
挂梁石材干挂设计图纸包括挂梁石材干挂。仅供大家参考!
挂檐钢架设计图纸
挂檐钢架设计图纸包括挂檐钢架。仅供大家参考!
干挂石材深化节点设计图纸
干挂石材深化节点设计图纸包括剖面图等。仅供大家参考!
供鮮风口大样设计详图
供鮮风口大样设计详图包括雕刻石材艺术品标准剖面详图、八楼天花剖面详图、宴会和会议厅供鮮风口大详图。
公共卫生间隔墙做法设计详图
公共卫生间隔墙做法设计详图包括公共卫生间隔墙做法。仅供大家参考!
干挂石材大样节点设计图纸
干挂石材大样节点设计图纸包括墙柱面石材干挂横剖面图、墙面石材干挂与木皮饰面装饰板交接横剖面图、墙柱面石材干挂阴角横剖面图、墙柱面石材干挂竖剖面图。
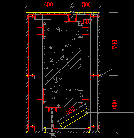
钢架墙面干挂石材平剖设计详图
钢架墙面干挂石材平剖设计详图包括钢架墙面干挂石材平剖详图、钢架墙面干挂石材平剖详图、钢架墙面干挂石材平剖详图。
挂梁石材干挂设计图纸
挂梁石材干挂设计图纸包括挂梁石材干挂。仅供大家参考!
共享大厅栏杆设计图纸
共享大厅栏杆设计图纸包括共享大厅栏杆图。仅供大家参考!
共享大厅栏杆设计图纸
共享大厅栏杆设计图纸包括共享大厅栏杆剖面图。仅供大家参考!
干挂石材剖面大样设计图纸
干挂石材剖面大样设计图纸包括干挂石材竖向剖面大样图、干挂石材横向剖面大样图。
钢结构楼梯节点设计图纸
钢结构楼梯节点设计图纸包括钢结构楼梯平面图、钢结构楼梯节点图、钢结构楼梯立面图。
首页
上一页
下一页
尾页