首页
首页
装修装饰
装修图纸
装修图纸
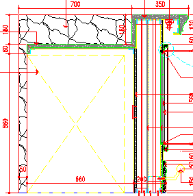
干挂石材深化节点设计图纸
干挂石材深化节点设计图纸包括剖面图等。仅供大家参考!
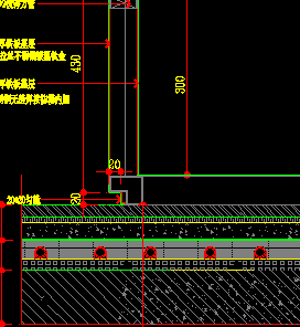
干挂石材深化节点设计图纸
干挂石材深化节点设计图纸包括干挂石材深化节点。仅供大家参考!
结算柜台上口及玻璃大样设计图纸
结算柜台上口及玻璃大样设计图纸包括结算柜台上口及玻璃大样。仅供大家参考!
花槽深化图纸
花槽深化图纸花槽深化图。仅供大家参考!
客厅电视墙设计图纸
客厅电视墙设计图纸包括客厅电视墙立面图、客厅电视墙平面图、大样图。仅供大家参考!
客厅电视墙石膏板白色乳胶漆设计图纸
客厅电视墙石膏板白色乳胶漆设计图纸包括客厅电视墙立面图、客厅电视墙平面图、大样图。
金属扶手栏杆安装节点设计图纸
金属扶手设栏杆安装节点计图纸包括剖面图、中国结大样图。仅供大家参考!
护栏和扶手制作与安装设计图纸
护栏和扶手制作与安装设计图纸包括窗前地台及扶手、楼梯栏杆及踏步大样。
接待厅天花设计图纸
接待厅天花设计图纸包括接待大厅状天花造型、施工图等。仅供大家参考!
金属艺术玻璃汇总节点设计图纸
金属艺术玻璃汇总节点设计图纸包括侧立面图、镂空铜花格正反面见光、剖面图、安装示意图、平面图。
红酒柜设计图纸
红酒柜设计图纸包括一层红酒柜图纸等。仅供大家参考!
红酒柜设计图纸
红酒柜设计图纸包括一层红酒吧详图等。仅供大家参考!
酒吧吧台大理石与木饰面设计图纸
酒吧吧台大理石与木饰面设计图纸包括酒吧吧台大理石与木饰面剖面图等。仅供大家参考!
花格节点图纸
花格节点图纸包括花格节点。仅供大家参考!
客厅电视墙设计图纸
客厅电视墙设计图纸包括客厅电视墙立面图、客厅电视墙平面图、大样图。
家具设计图纸
家具设计图纸包括阅读室、商务中心家具图。仅供大家参考!
会所门扇大样设计图纸
会所门扇大样设计图纸包括会所门扇大样图。仅供大家参考!
空调风口竖向剖面设计图纸
空调风口竖向剖面设计图纸包括空调风口竖向剖面图。仅供大家参考!
客厅钢琴烤漆饰面钢架设计详图
客厅钢琴烤漆饰面钢架设计详图包括客厅钢琴烤漆饰面钢架剖面详图、玄关处钢琴烤漆饰面钢架剖面详图。
客厅石材电视背景墙设计图纸
客厅石材电视背景墙设计图纸包括顶层复式客厅石材电视背景。仅供大家参考!
首页
上一页
下一页
尾页